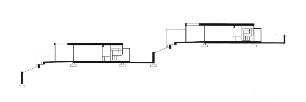
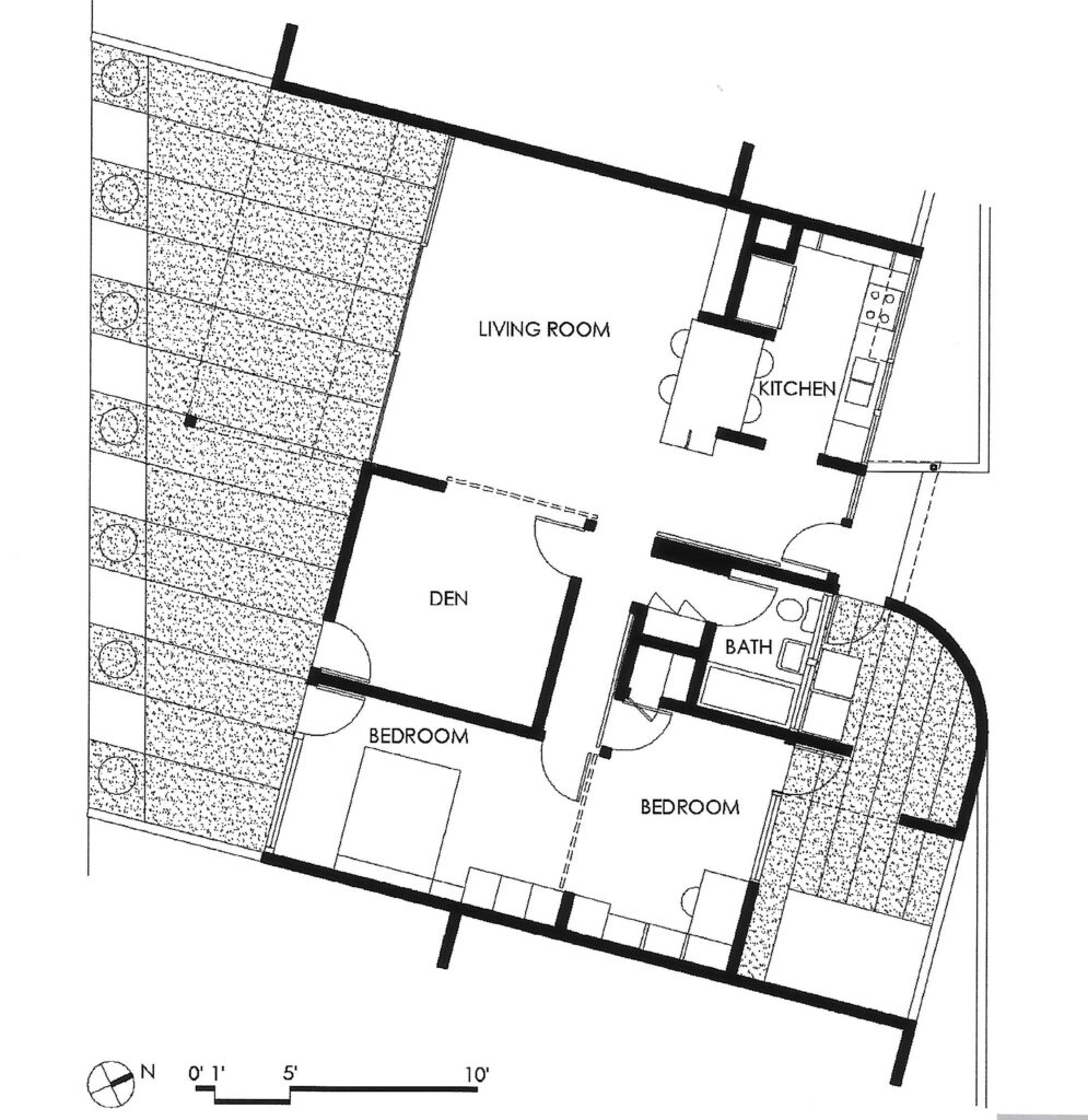
the avenel cooperative was designed by local los angeles architect gregory ain in 1948. ain had apprenticed with richard neutra and rudolph schindler. mr. Olschlager purchased a unit in the ten-unit complex located in the hills of the silver lake district of los angeles in 1992. the complex had been significantly altered at the time and was being lost to history. mr. olschlager restored his unit to its original condition in 2000. the restoration received an american institute of architects/sunset magazine merit award and was published in their magazine in 2002. the historic photo was taken by julius schulman and dining table photo was taken by marvin rand.




